

Illustrating 7 days into buildings and construction documents. Design drawings required for the building construction plan are included in poster 1, and buildings constructed based on the design and construction plan are included in poster 2.
Project
Personal
Duration
3 Months
Oct 2019 ~ Dec 2019
Goal
Academic
Tools
Illustrator, Photoshop
Building a Productive Day, One Image at a Time
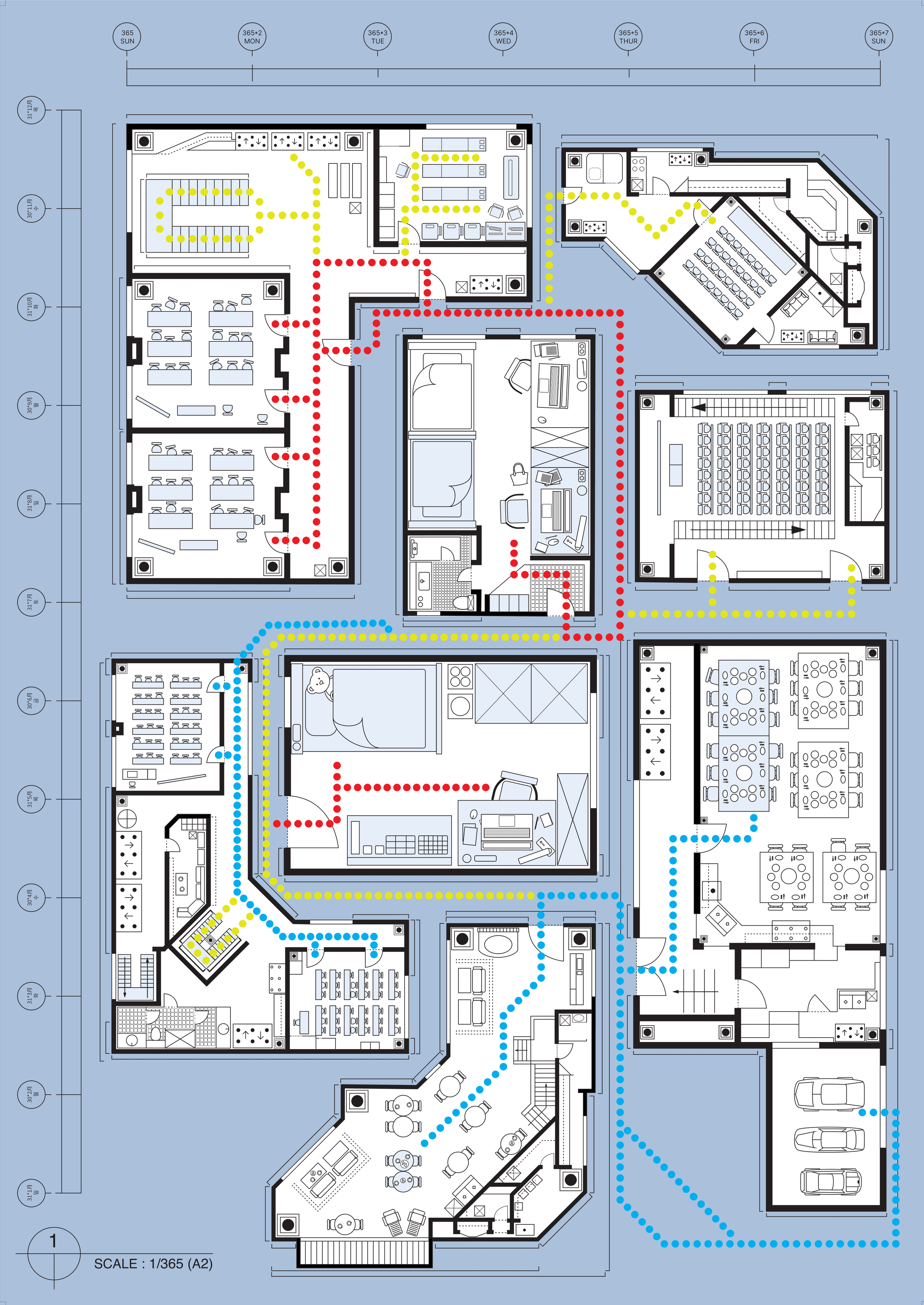
1. A floor plan The drawing shows the space where the planned important schedule has been made.
Building a Productive Day, One Image at a Time
1. A floor plan The drawing shows the space where the planned important schedule has been made.
Building a Productive Day, One Image at a Time
1. A floor plan The drawing shows the space where the planned important schedule has been made.

2. Architecture drawing & coloring Complete the building by stacking modules corresponding to what happened during the day.
2. Architecture drawing & coloring Complete the building by stacking modules corresponding to what happened during the day.
2. Architecture drawing & coloring Complete the building by stacking modules corresponding to what happened during the day.







Offline exhibition
Offline exhibition
Offline exhibition





Background
What if daily life becomes an architecture?
Just as stairs and columns play different roles in buildings, I compared building subsidiaries to ways of obtaining or using energy in daily life.
Background
What if daily life becomes an architecture?
Just as stairs and columns play different roles in buildings, I compared building subsidiaries to ways of obtaining or using energy in daily life.
Background
What if daily life becomes an architecture?
Just as stairs and columns play different roles in buildings, I compared building subsidiaries to ways of obtaining or using energy in daily life.
1
Analysis daily life
Module Settings
2
Plan a day
Building plans
3
Put it into action
Architectural drawing
4
Write a diary
Coloring Construction log
Design process
Architecture is the same with our daily lives.
The structure is complete with a roof covering it in a high sky, starting from the ground. The stronger the lower floor is, the stronger the floor is to be raised, like a high-rise building. Not all of the first things are done at once, and each step requires a stable process and a timely mindset.
Design process
Architecture is the same with our daily lives.
The structure is complete with a roof covering it in a high sky, starting from the ground. The stronger the lower floor is, the stronger the floor is to be raised, like a high-rise building. Not all of the first things are done at once, and each step requires a stable process and a timely mindset.
Design process
Architecture is the same with our daily lives.
The structure is complete with a roof covering it in a high sky, starting from the ground. The stronger the lower floor is, the stronger the floor is to be raised, like a high-rise building. Not all of the first things are done at once, and each step requires a stable process and a timely mindset.

Development
1. Plan a day
Plan out what I need to do tomorrow, travel time, distance, etc. in advance and write them down on the construction plan. One floor of the building is added for each task.
Development
1. Plan a day
Plan out what I need to do tomorrow, travel time, distance, etc. in advance and write them down on the construction plan. One floor of the building is added for each task.
Development
1. Plan a day
Plan out what I need to do tomorrow, travel time, distance, etc. in advance and write them down on the construction plan. One floor of the building is added for each task.



2. Put the plan into action
I spend my day based on the plan. As I progress through the schedule, the building gets taller and more splendid.
2. Put the plan into action
I spend my day based on the plan. As I progress through the schedule, the building gets taller and more splendid.
2. Put the plan into action
I spend my day based on the plan. As I progress through the schedule, the building gets taller and more splendid.

3. Write a diary
If I both had very busy days and relaxed days, I will end up with a variety of buildings.
3. Write a diary
If I both had very busy days and relaxed days, I will end up with a variety of buildings.
3. Write a diary
If I both had very busy days and relaxed days, I will end up with a variety of buildings.

